Moj nalog
Registruj se
Prijavi se
Lista želja (0)
Kasa
+381 64 64 16 770
+381 64 86 97 111
office@aquatec.rs
0 predmet(a) - 0,00RSD
Vaša korpa je prazna!
Traži
Poliesterski bazeni
Saune
Hemija za bazene
PVC cevi za bazene
Kontakt
Kompletna rešenja za bazene
Projektovanje, izgradnja i oprema — sve na jednom mestu
Sigurna kupovina online
Proverena dostupnost, brza isporuka i podrška
Eksperti za kvalitetan odmor
Saune, wellness i relaksacija — kao u luksuznom spa-u
Menu
Bazeni
A-tec panelni bazeni
Metal panel bazeni
Poliesterski bazeni
Keramički bazeni
Montažni bazeni
Betonski bazeni
Oprema za bazene
Filteri za bazene
Šestopoložajni ventili
Filterska ispuna
Manometri
Pumpe za bazene
Tehničke prostorije
Skimeri
Maske za skimere
Mlaznice
Oprema za montažu mlaznica
Prodori
Slivnici za bazene
Prelivne rešetke za bazene
Lajsne za prelivni kanal
Uglovi prelivnog kanala
Oprema za hidro i aero masažu
Rasveta
Reflektori
LED trake
Razvodne kutije
Bužiri
Uvodnice
Kućišta za reflektore
Transformatori - trafoi
Rezervne sijalice
Elektrokomandni ormani i kontroleri za bazene
Oprema za tretman vode u bazenu
Dozirne pumpe
Elektrolize
UV lampe
Hlorinatori
Prateća oprema
Grejanje bazena
Stepenice, Merdevine, Rukohvati
Oprema za čišćenje i održavanje
Vodene atrakcije
Automatska dopuna bazena
Odvlaživači za bazene
Prekrivači za bazene
Motalice
Tuševi
Ležaljke
Hemija za bazene
Folija - lajner za bazene
Folija - lajneri
Oprema za montažu folije/ lajnera za bazene
Alat za montažu folije/ lajnera za bazene
Cevi I fiting
Cevi
Fiting
ROBOTI - USISIVAČI za bazene
Saune
Suve finske saune
Infracrvene saune
Saune za dvorište
Peći za saune
Kontrolni paneli za saune
Oprema za saune
Arome za saune
Wellness i SPA
Parna kupatila
Parogeneratori
Omekšivači vode
Vrata za parna kupatila
Slane sobe
Proizvodi od himalajske soli
Djakuzi
Tople klupe
Tepidarijumi
Hidromasažne kade
Hidromasažne tuš kabine
Hidromasažne kade za rehabilitaciju
Setovi za parna kupatila
Tuš doživljaja
Oprema za wellness i spa
Pločice za bazene
REVIGLAS stakleni mozaik
REVIGLASS bordure
REVIGLASS Murali - slike
Mozaik pločice za bazene
Bordure od mozaik pločica
Murali - slike od mozaik pločica
Porcelanske pločice za bazene
Završne pločice za bazene
RUBNI KAMEN za bazene
Fontane
Aquapark
Partneri
Vaučer
Proizvođači
Vrati proizvod
Mapa sajta
Kontakt
Naslovna
Oprema za bazene
Vodene atrakcije
Vodeni krevet za betonske bazene
Vodeni krevet za betonske bazene
Prodavac:
A-TEC
Tip: 770010
Raspoloživost: Na lageru
345.864,00RSD
Ex Tax:
345.864,00RSD
Količina
Dodaj u korpu
- OR -
Dodaj u listu želja
Uporedi
0 recenzija(e)
Napišite recenziju
Opis
Recenzije (0)
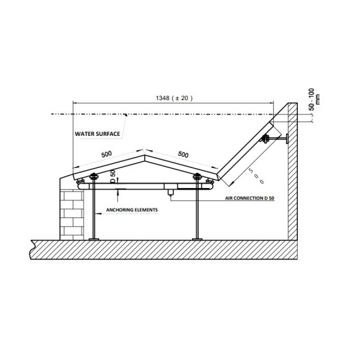
VODENI KREVET ZA BETONSKE BAZENE
* Materijal:
INOX 316
* Dimenzije:
1350 x 270mm
Napišite recenziju
Vaše ime
Vaša recenzija
Napomena:
HTML nije preveden!
Ocena
Loše
Dobro
Dalje
Tagovi:
Oprema za bazene
,
Bazeni
,
Aquatec